top of page
The market yard
The market yard
The market yard
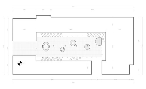
In this project I designed a courtyard which functions like a market. In the center of the market there are elements which are used for displaying wares and art such as second-hand clothing and textiles, accessories, paintings and more. These elements are mushroom shaped and are made of a wire mesh fence which gives them a light and transparant look. This design guarantees that ehy don't steal the focus of the products displayed in the stalls. The market area is surrounded by roofed restaurants, cafes, pastry shops and delicatessens.

The site


Plan and section



Simulations
bottom of page